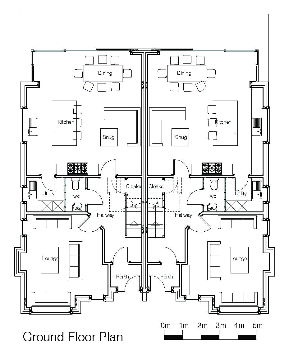
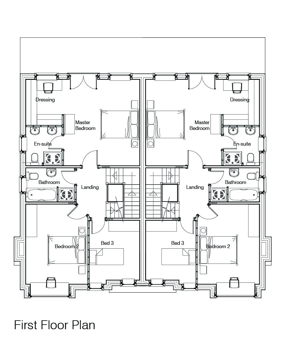
Land Value Enhancements - High Elm Road, Hale Barns
TWO SEMI-DETACHED HOUSES
The brief from the client/developer, was to achieve Planning Permission for a garden plot with significant challenges in both the ground conditions and the large overgrown trees.
After achieving Planning Permission for a large single new dwelling with a detached garage, we used a similar established footprint to maximise the plot for 2 family semi-detached new builds, designed for the open market, with an emphasis on high quality external materials and detailing.
Is your project our next design challenge?
If so, our process is simple!
Is your project our next design challenge?
If so, our process is simple!

Let's talk - speak to an experienced member of our team

Let's arrange an initial consultation to discuss your ideas

We'll define a proposal to develop your concept into reality




